Zur Vermietung steht eine erst kürzlich umfassend sanierte und hochwertig renovierte Büro- bzw. Geschäftsfläche in exzellenter Fußgängerlage von Kirchrode. Die Fläche überzeugt durch ihre außergewöhnliche Architektur, eine sehr hochwertige Ausstattung sowie eine repräsentative Glasfront, die maximale Sichtbarkeit garantiert.
Die Innenraumgestaltung wurde von einem Architekten entworfen und nutzt den vorhandenen Raum äußerst effizient. Durch maßgefertigte Einbauten, Schränke und Tische wurde die Fläche intelligent in mehrere Funktionsbereiche gegliedert, ohne an Offenheit zu verlieren.
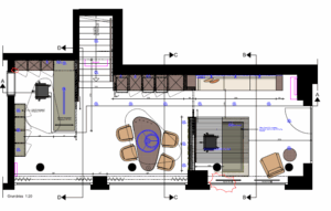
Raumaufteilung & Ausstattung
•Einladender Empfangsbereich mit architektonischen Lamellen und kleiner Sofafläche
•Besprechungsraum / Mitarbeiterarbeitsplatz im mittleren Bereich
•Weiterer separater Arbeitsplatz im hinteren Bereich
•Zentraler, hochwertiger Einbauschrank mit integrierter Garderobe, Kühlschrank, Kaffeemaschine, Müllsystem sowie Platz für einen großen Bildschirm
•Zwei hochwertige Schiebetüren, mit denen die einzelnen Bereiche je nach Bedarf offen gestaltet oder vollständig abgetrennt und abgeschlossen werden können.
Die vorhandene Design-Innenausstattung kann übernommen werden, ist jedoch keine Voraussetzung. Aufgrund der maßgefertigten Einbauten wäre eine Übernahme wünschenswert.
Zusätzliche Flächen im Untergeschoss
Ergänzend steht ein großzügiger Kellerbereich zur Verfügung, der optional genutzt werden kann. Dieser umfasst:
•WC
•kleine Küche
•zwei große, vielseitig nutzbare Räume (z. B. Lager, Archiv, zusätzlicher Arbeitsbereich)
Komfort & Lage
•Großzügige Glasfront in bester Sichtlage – ideale Werbewirkung
•Klimaanlage für angenehmes Raumklima auch im Sommer
•Spezielle Sonnenschutzvorhänge, die vor Hitze schützen und gleichzeitig Sicht nach außen ermöglichen, ohne Einblicke von außen zuzulassen
•Stellplatz oder Tiefgaragenstellplatz optional anmietbar
Diese Fläche eignet sich ideal für Büros, Agenturen, Praxen, Beratungsunternehmen oder repräsentative Geschäftsmodelle, die Wert auf Design, Sichtbarkeit und flexible Nutzung legen.
Diese einzigartige Geschäftsfläche in bester Lage wartet nur darauf, von Ihnen übernommen zu werden. Nutzen Sie die Gelegenheit, Ihr Unternehmen an einer der Top-Adressen von Kirchrode zu präsentieren!
.png)